Projekt Siriusweg 20
Leitseite · Fotos: 1 · 2 · 3 · 4 · 5 · 6 · 7  |  Pläne: Boden '68 · ['09-III] + Dach '68 · '09 – Bauantrag 2009 PDF-Datei zum Ausdrucken


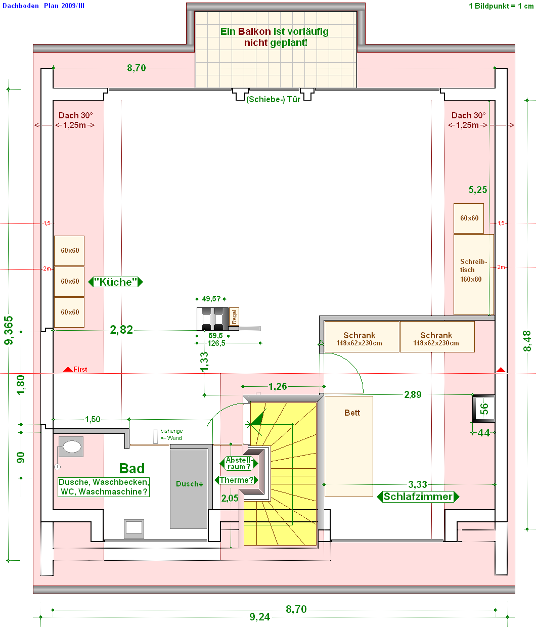
Siriusweg 20: Planung des Dachbodens (2009-III)
Das Haus Siriusweg 20: Planung des Dachbodens (2009, III. Quartal)